廣州梓凈所提供的千級潔凈棚,千級潔凈棚設計施工,千級凈化棚,簡易無塵室,質量可靠、規格尺寸齊全,梓凈不僅具有精湛的技術水平,更有良好的售后服務和優質的解決方案,歡迎您來電咨詢此千級潔凈棚與千級凈化棚產品具體參數及價格等詳細信息。
千級潔凈棚又叫千級凈化棚也稱(簡易無塵室)(CLEANBOOTH)是為最快速方便建立的一座簡易潔凈室,潔凈棚具備多種潔凈等級及空間搭配可以根據使用需求設計制作,因此其簡便運用彈性大安裝容易且施工期短以及可移性為其主要特點,潔凈棚同時可針對在一般等級的潔凈室中局部地區需要高潔凈度的地方做局部增設以降低成本。潔凈棚采用鐵方通噴塑、不銹鋼方通、鋁型材作為框架,FFU(風機過濾單元)送風,四周懸掛防靜電垂簾或鋼化玻璃,內部凈化級別可達到靜態100-10000級(美聯邦209E標準)。適用于操作區內局部凈化級別要求高的區域。
千級潔凈棚是一種可提供局部高潔凈環境的空氣凈化設備。潔凈棚主要由箱體、風機、初效空氣過濾器、阻尼層、燈具等組成,外殼噴塑。
該產品既可懸掛,又可地面支撐,結構緊湊,使用方便。可以單個使用,也可多個連接組成帶狀潔凈區域。

潔凈棚別名:凈化工作站、凈化棚、無塵操作亭,潔凈工作棚、潔凈房、凈化房、無塵棚、無菌棚、潔凈操作棚、凈化無塵工作棚。
潔凈棚級別等級:百級潔凈棚,千級潔凈棚,萬級潔凈棚,十萬級潔凈棚,三十萬級潔凈棚。
潔凈棚特別適用于電子、微電子、半導體、液晶、醫藥、生物、工程、光學、航天等行業。
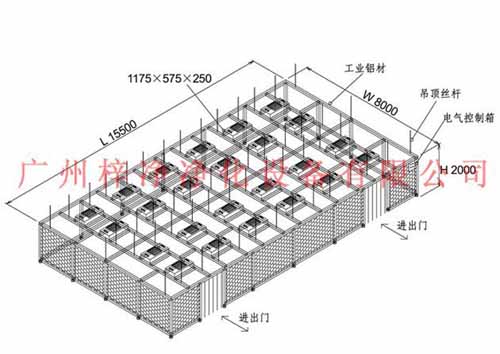
千級1000級潔凈棚采用工業鋁材(或不銹鋼方通、鐵方通噴塑)作為框架,風機濾網機組(FFU)送風,四周懸掛防靜電垂簾(或鋼化玻璃),其內部凈化級別可達到100級-10000級。適用于操作區內局部凈化級別要求高的區域。

潔凈棚應用領域:
潔凈棚一般對區域潔凈度要求比較高的行業會用到潔凈棚,下面我們來看一下潔凈棚的應用領域。
1、實驗室,科研單位外部為普通辦公室,廠房區域,個別實驗研究內容需要具備一定溫濕度,照度,潔凈度要求,細菌等的實驗工作控制在凈化潔凈工作棚區域內,提高科研項目的成功率。
2、電子廠房等車間外部車間凈化級別較低,內部需要更高級別要求區域,如流水線作業區,檢查臺面,特種設備工作釋放灰塵顆粒或特殊氣味的,適用于建造局部小面積區域,把核心工序控制在潔凈區域內,達到提高產品良率,尤其一些光電行業的生產設備,生產過程中會釋放異味,潔凈工作棚頂部的自帶風機過濾系統更能提升內部空氣質量,提供給員工舒適的空氣環境。
3、食品領域,在生產,包裝過程中一般建議使用廣州梓凈百級潔凈棚,級別越高,生產出來的產品在安全、衛生方面才能達到我國GMP,食品QS的標準,也才能達到消費者的信賴。在近幾年的潔凈棚銷售中,越來越多的餐飲行業也在逐漸重視食品安全衛生的管控,潔凈棚、風淋室等設備在快餐,熟食,冷凍食品,面包烘焙等企業廣泛運用。

千級潔凈棚結構:
材料以鋼方通噴塑作為框架,采用風機濾網機組FFU送風,千級凈化棚四周圍用防靜電垂簾,頂部鋪蓋密縫盲板,形成一個密縫區,內部凈化級別可達10—100000級;特別適用于車間內局部凈化級別要求高的區域,如流水線作業區域。高精確度產品組裝區。
千級潔凈棚特點:?
1、組裝式結構設計,安裝方便,大大縮短了交貨周期;
2、移動方便;適用于建造小面積的潔凈區域。
3、模塊化結構,提高凈化級別容易,擴展性強,且重復利用價值高;
4、凈化工作站相對超凈工作臺,內部可用有效空間大;相對傳統無塵室,成本低、施工快、且對樓層高度低不限。

千級潔凈棚材料:
1、框架:50*50噴塑鋼方通,穩固、美觀、不生銹、不產塵;
2、防靜電垂簾:0.3mm厚網格(韓國進口) 防靜電效果好、透明度高、網格清晰、柔韌度好、不變形、不易老化;防塵除靜電。
3、潔凈室頂蓋板采用準軋鋼板靜電噴塑,
4、內部采用凈化室專用凈化燈。不產塵。
5、風機濾網機組FFU:采用離心風機,具有長壽命、低噪聲、免維護、震動小、可無級變速等特性,風機質量可靠,工作壽命長加上獨特的風道設計,大大提高了風機的效率、降低了噪聲。

千潔凈化棚工作原理:
風機從FFU頂部將空氣吸入,經初效過濾器,高效過濾器過濾,過濾后的潔凈空氣在整個出風面以0.45m/+20%的風速勻速送出到深圳無塵棚內。形成均流層,使潔凈空氣氣流呈垂直單向流,從而保證了工作區內所要求的潔凈度。
千級潔凈棚規格尺寸及技術參數:

1、千級潔凈棚送風量如何計算?
潔凈棚工作區的立方數*換氣次數,比如:寬3000mm*長3000mm*高2200mm*換氣次數65次。
2、千級潔凈棚支撐架方通選擇什么材料合適?
支撐架方通一般有三種:鐵方通烤漆,201不銹鋼方通,304不銹鋼方通,鋁合金方通。
其中鐵方通烤漆,201不銹鋼方通價格便宜,304不銹鋼方通,鋁合金方通價格昂貴。
潔凈棚污染源知識:
1、潔凈棚是發塵量:潔凈棚內的發塵量
來自設備的可考慮通過局部排風排除,不流入室內;潔凈棚是產品,材料等在運送過程中的發塵與人體發塵量相比,一般極小,可忽略;由于金屬半壁(彩鋼夾心板)的應用來自建筑表面的發塵也很少,一般占10%以下,發塵主要來自人,占90%左右。在人的發塵量上,由于服裝材料和樣式的改進,發塵絕對量也不斷減少。
A、材質:棉質發塵量最大,以下依次為棉、的確良、去靜電純滌綸、尼龍。
B、樣式:大掛式發塵量最大,上下分裝型次之,全罩型最少;
C、活動:動作時的發塵量一般達到靜止時間3-7倍;
D、清洗:用溶劑洗滌的發塵量降至用一般水清洗的五分之一。
室內維護結構表面發塵量,以地面為準,大約相應8平方米地面時的表面發塵量與一個靜止的人的發塵量相當。
2、潔凈棚是發菌量:工作人員產生的污染
1)皮膚:人類通常每四天完成一次皮膚的完全脫換,人類每分鐘脫落約1000片皮膚(平均大小為30*60*3微米);
2)頭發:人類的頭發(直徑約為50~100微米)一直在脫落;
3)口水:包括鈉、酶、鹽、鉀、氯化物及食品微粒;
4)日常衣物:微粒、纖維、硅土、纖維素、各種化學品和細菌;
5)人類靜止和坐立每分鐘將產生10000個大于0.3微米的微粒;
6)人類在頭部和軀干做動作時每分鐘將產生1000000個大于0.3微米的微粒;
7)人類以0.9m/s的速度行走時每分鐘將產生5000000個大于0.3微米的微粒。

廣州梓凈所提供的空氣凈化產品及設備有風淋室,貨淋室,初效過濾器,中效過濾器,高效過濾器、超凈工作臺,潔凈工作臺,傳遞窗,風淋室配件,風淋室控制器,化學過濾器,FFU風機過濾單元,空氣自凈器,潔凈棚,新風柜,過濾柜,通風柜,洗手池,潔凈采樣車,高風效送口等等潔凈室及配套用凈化產品等。無塵車間凈化設備廣泛應用于電子、半導體、生物制藥、食品加工、核工業、汽車制造業,空調暖通業行業和領域等。
